MONTE UMAG

Lokacija: Novigradska ulica, Umag, Istarska županija, Croatia

Godina: 2023-

Status: U izgradnji

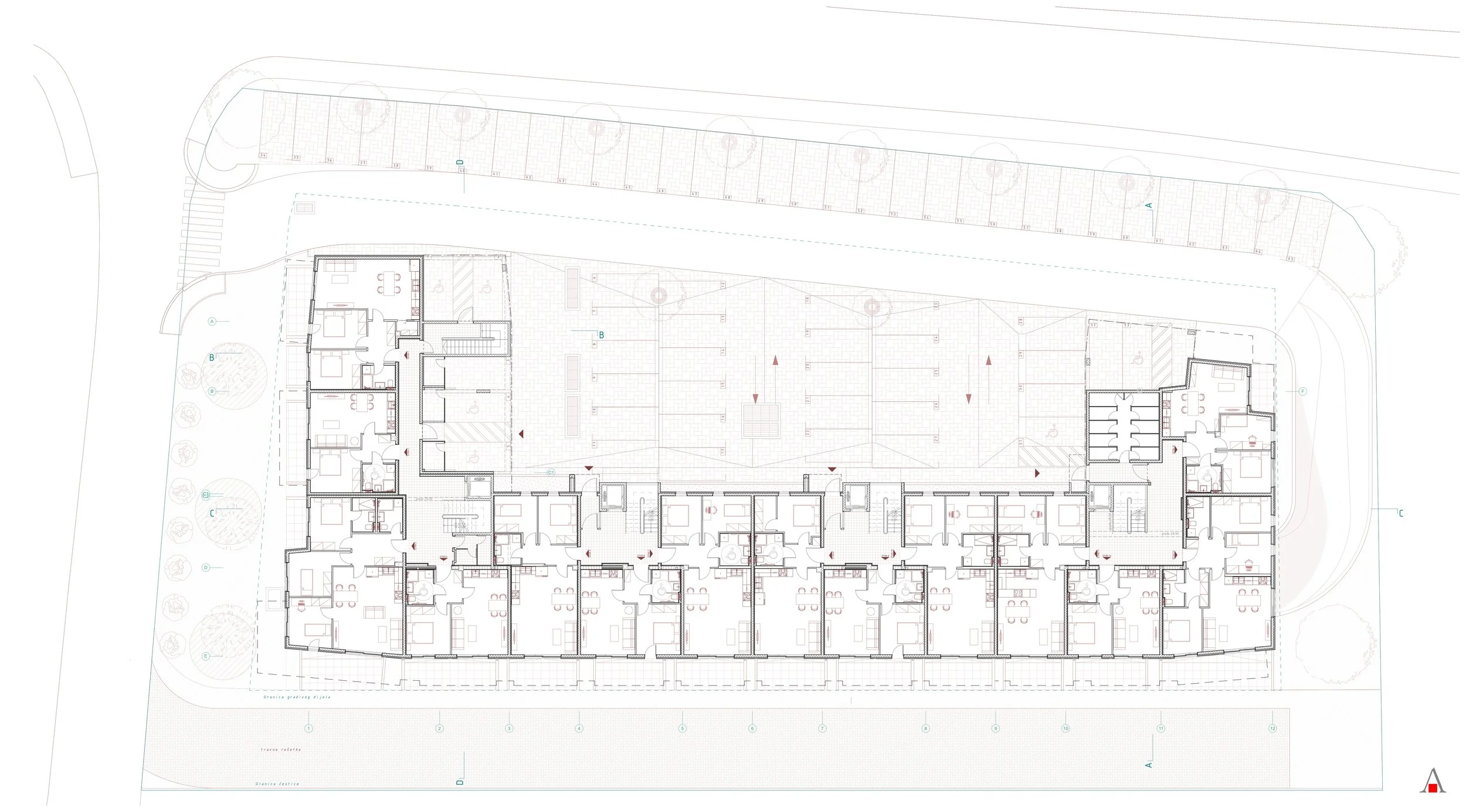
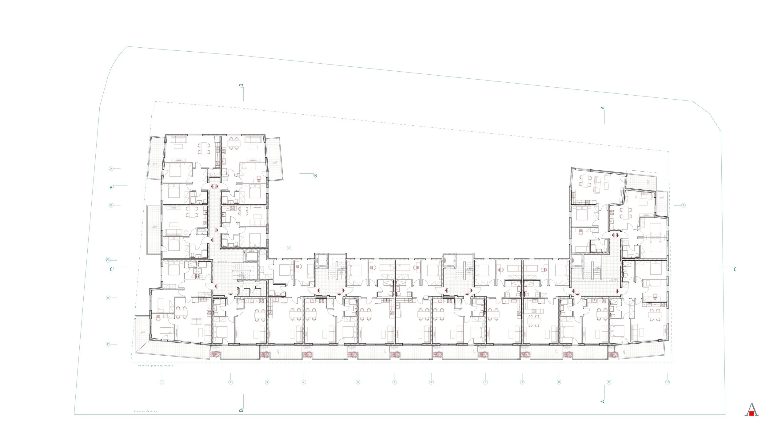
Tlocrtna forma novoplaniranog objekta je linearno ukrivljena s dvije strane, ima oblik raširenog nepravilnog slova ’U’, s arhitektonskim artikulacijama terasa i balkona na etažama. Dispozicija karakteristične etaže višestambene građevine jasno je organizirana u četiri cjeline međusobno nepovezane, u kojima su stanovi organizirani oko komunikacijskih jezgri.

Tako tlocrtno gledano imamo dva kraka svaki s jedne strane, te dvije cjeline u središtu objekta. Dvije cjeline u središtu sadrže po 3 stana po etaži, na način da je jednosoban stan središnje postavljen i jednostrano orijentiran, a dva dvosobna stana su sa svake strane jezgre te dvostrano orijentirana – zapad-istok.

Tlocrt prizemlja

Projektom predviđene 82 stambene jedinice dijele se na jednosobne, dvosobne i trosobne stanove. Prizemlje novoplanirane građevine sadrži 14 stambenih jedinica. Od toga je 6 jednosobnih, 6 dvosobnih i 2 trosobna stana.

Projektom je u višestambenoj građevini predviđeno 30 jednosobnih stanova, 42 dvosobna stana, te 10 trosobnih stanova - što daje ukupan broj od 82 stambene jedinice. Svi stanovi imaju pripadan vanjski prostor u obliku terasa za stanove u prizemlju, s pripadnim dijelom zelene površine, te balkona za stanove na gornjim etažama.

Tlocrt karakteristične etaže ( katovi 1-4 )

Presjek C-C

Previous
Previous

Urbane Vile Rovinj

Next
Next

CENTURION